Bostäder med stor variation
I Skogsvaktaren finns flera olika lägenhetstyper att välja emellan, alla med samma genomtänkta grundstandard. Läs mer om några av dem nedan.
Funktionella och komfortabla 1:or & 2:or
De mindre lägenheterna är optimerade för både komfort och funktionalitet, med smarta planlösningar som i vissa fall inkluderar sovalkover för extra avskildhet eller separata sovrum. Majoriteten av dessa bostäder har direkt tillgång till naturen via balkonger eller egna trädgårdar. Utöver detta är varje lägenhet utrustad med ett praktiskt kök och ett kaklat badrum, komplett med tvätt- och torkmöjligheter.
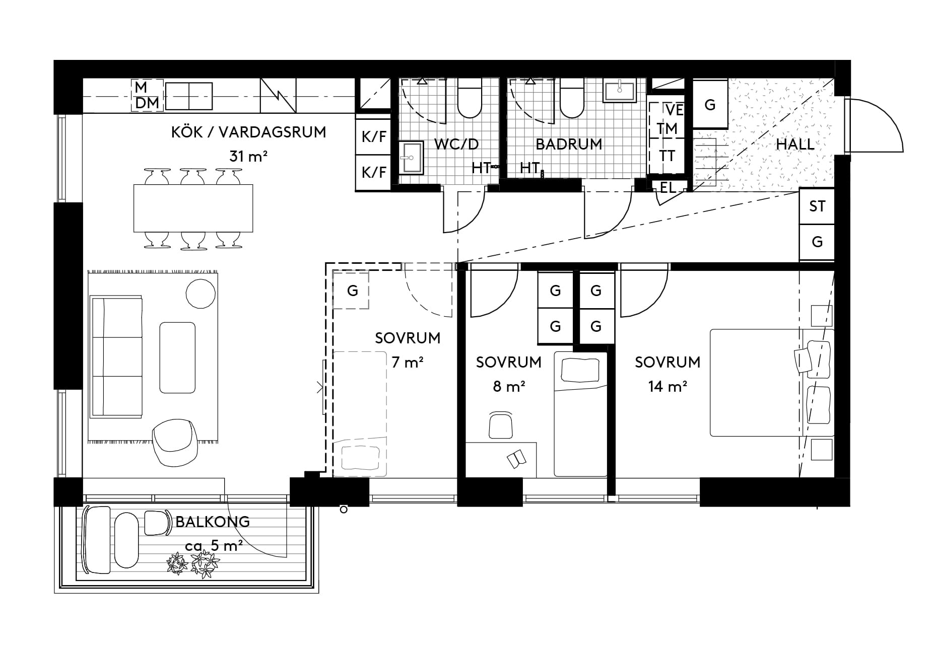
Flexibla och sociala 3:or, 4:or & 5:or
De större lägenheterna är perfekta för familjeliv och socialt umgänge, med rymliga kök och öppna vardagsrum som är strategiskt placerade för att maximera både utsikt och naturligt ljus. Genomtänkta siktlinjer bidrar till en öppen och inbjudande atmosfär.
Flexibiliteten i dessa bostäder tillåter dessutom anpassning av planlösningen: vissa 5:or kan konverteras till rymligare 4:or, och vissa 4:or till 3:or genom att välja bort en vägg, vilket ger extra möjligheter att skräddarsy ditt hem.
Lägenheter med privat trädgård
Alla lägenheter på markplan i Skogsvaktaren är trädgårdslägenheter, var och en med sin egen organiskt utformade täppa, avgränsad av mjukt böljande buskage. Storleken och formen på trädgårdarna varierar och erbjuder något för alla – från små gräsytor perfekta för några krukor, till rymliga gräsmattor för trädgårdsskötsel och solbad.
Platsanpassade trädäck gör det möjligt att kliva rakt ut i Nackareservatet från sin uteplats. En växtspaljé med inbyggd planteringslåda fungerar som en naturlig avskiljare mellan grannarna och skapar både avskildhet och en känsla av gemenskap.
