C1003
Status
Såld
Pris (kr)
Avgift (kr)
6 828
Antal rum
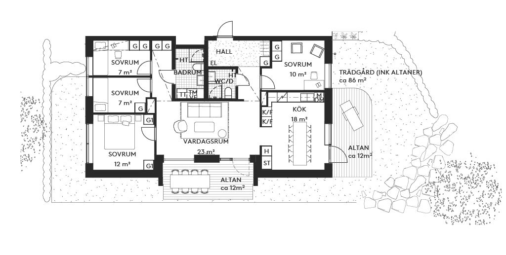
5
Boyta (m²)
102
Våning
0
Boendeform
Bostadsrättslägenhet
Uppskattad driftkostnad (kr)
842
Inflytt
december 2026 - februari 2027
C1003
Gavelfemma med stor trädgård och dubbla altaner. Välkommen hem till en av trähuset Skogsvaktarens pärlor: en stilsäker och hantverksmässig femrummare precis vid porten till Nackareservatet. Här suddas gränserna mellan lägenhets- och villaboende ut när ni stiger ut i er privata trädgård som omger hela hemmet i tre väderstreck. Stora fönsterpartier gör att naturen kommer än närmare.
Lägenheten är inredd med högkvalitativa materialval och har fyra välplanerade sovrum. Här finns också två helkaklade badrum, varav ett med tvättmaskin och torktumlare. Det rymliga köket går i linnetoner och öppnar upp mot en av lägenhetens altaner; vardagsrummet öppnar upp mot den andra. Utanför dörren väntar skogens lugn eller stadens puls, beroende på vilket håll du går åt.
Skogsvaktaren är ett unikt hus byggt helt i trä, och trä liksom andra naturmaterial är högst närvarande även i lägenheterna. Askparkett finns i alla rum förutom hall och badrum. Fönsternischerna är i träfanér och fönsterbänkarna är i natursten. Här trivs du som uppskattar hantverk, hållbarhet och material av hög kvalitet.
Lägenheten är inredd med högkvalitativa materialval och har fyra välplanerade sovrum. Här finns också två helkaklade badrum, varav ett med tvättmaskin och torktumlare. Det rymliga köket går i linnetoner och öppnar upp mot en av lägenhetens altaner; vardagsrummet öppnar upp mot den andra. Utanför dörren väntar skogens lugn eller stadens puls, beroende på vilket håll du går åt.
Skogsvaktaren är ett unikt hus byggt helt i trä, och trä liksom andra naturmaterial är högst närvarande även i lägenheterna. Askparkett finns i alla rum förutom hall och badrum. Fönsternischerna är i träfanér och fönsterbänkarna är i natursten. Här trivs du som uppskattar hantverk, hållbarhet och material av hög kvalitet.
Dokument
Visning och kontakt
På visning får du möjlighet att ställa alla dina frågor och funderingar och vi tittar i bostadsväljaren för att hitta en lägenhet som passar dina behov och önskemål. Om det inte finns någon tid publicerad eller om just den tiden inte passar dig är du varmt välkommen att boka ett privat möte.
Nästa visning
Datum: torsdag 28 maj
Tid: 16:30 - 17:00
Plats: Välkommen på visning på Erik Olsson Nyproduktions kontor, Hagaesplanaden 77, Stockholm
