4-1203
Status
Såld
Pris (kr)
Avgift (kr)
6 627
Antal rum
4
Boyta (m²)
92
Våning
2
Boendeform
Bostadsrättslägenhet
Uppskattad driftkostnad (kr)
892
Inflytt
Oktober 2026
4-1203
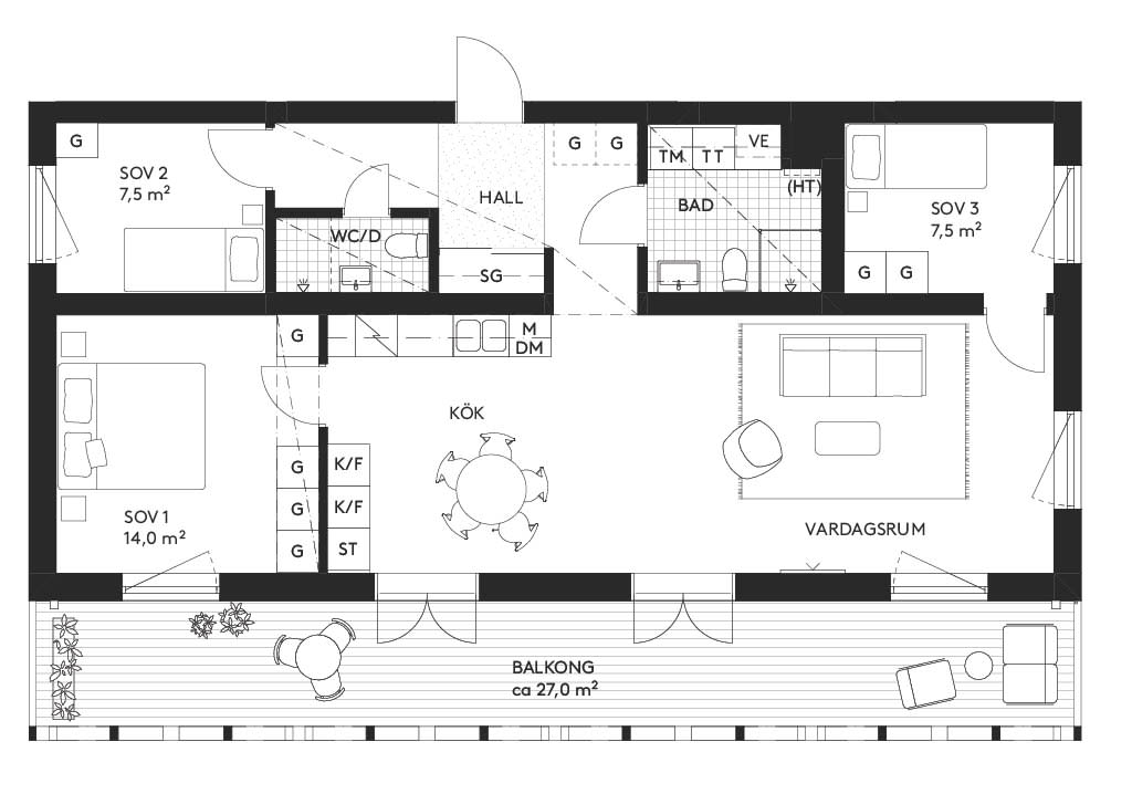
Stor balkong om ca 27 kvm i sydvästligt läge!
Gavellägenhet om 4 rok, 92 kvm med trevligt läge mot föreningens gård. Stor balkong om ca 27 kvm som nås via dubbla pardörrar från både kök och vardagsrum. Genom ljusinsläpp från två väderstreck skapas en ljus och luftig känsla. Köket och vardagsrummet är snyggt sammanlänkade, vilket skapar en öppen och social atmosfär. Stort masterbedroom med gott om förvaringsmöjligheter samt två mindre sovrum med plats för säng och förvaring. Stort badrum och separat wc/dusch. Rymlig hall med förvaring i skjutdörrsgarderob.
Köket är modernt och funktionellt med köksluckor i ljuspigmenterad ekfanér, bänkskiva i kvartskomposit i originalutförande och rostfri kyl/frys samt integrerad diskmaskin. Här finns även en induktionshäll med inbyggnadsugn i underskåp samt en mikrovågsugn. Badrummet är elegant inrett med väggar och golv i vitgrå granitkeramik samt tvättmaskin och torktumlare. Hallen har ett golv av kokosmatta vilket är både praktiskt och snyggt. Övriga golv är av 2-stavs ekparkett.
Gavellägenhet om 4 rok, 92 kvm med trevligt läge mot föreningens gård. Stor balkong om ca 27 kvm som nås via dubbla pardörrar från både kök och vardagsrum. Genom ljusinsläpp från två väderstreck skapas en ljus och luftig känsla. Köket och vardagsrummet är snyggt sammanlänkade, vilket skapar en öppen och social atmosfär. Stort masterbedroom med gott om förvaringsmöjligheter samt två mindre sovrum med plats för säng och förvaring. Stort badrum och separat wc/dusch. Rymlig hall med förvaring i skjutdörrsgarderob.
Köket är modernt och funktionellt med köksluckor i ljuspigmenterad ekfanér, bänkskiva i kvartskomposit i originalutförande och rostfri kyl/frys samt integrerad diskmaskin. Här finns även en induktionshäll med inbyggnadsugn i underskåp samt en mikrovågsugn. Badrummet är elegant inrett med väggar och golv i vitgrå granitkeramik samt tvättmaskin och torktumlare. Hallen har ett golv av kokosmatta vilket är både praktiskt och snyggt. Övriga golv är av 2-stavs ekparkett.
Dokument
Visning och kontakt
Nyfiken på bostäderna i Sjöhusen? Varje tisdag är det visning, kontakta mäklaren för att boka tid!
Välkommen!
